钢结构厂房降温是一个综合性的标题,钢结构厂房处理这一问题需求对症下药,首先要找到影响钢结构厂房温度升高的首要要素,着重于片面问题的处理,然后挑选适宜的方法有针对性的将相对非有必要要素进行处理,以次抵达出色的室内环境,最高的性价比。
钢结构厂房降温措施推荐
钢结构厂房降温是一个综合性的标题,钢结构厂房处理这一问题需求对症下药,首先要找到影响钢结构厂房温度升高的首要要素,着重于片面问题的处理,然后挑选适宜的方法有针对性的将相对非有必要要素进行处理,以次抵达出色的室内环境,最高的性价比。
一、钢结构厂房保温降温
钢结构厂房保温膜能隔绝大部分的太阳光辐射和传导热量,减少室内构成温室效应。然后极大的下降厂房的温度,改善钢结构厂房的环境。

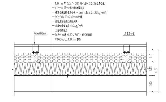
现在常用的方法有以下两种挑选:给钢结构厂房屋面加盖保温棉,一般屋面上运用的保温棉是玻璃棉,常用厚度为50mm,75mm,100mm,密度为10kg/m,设备好一般可以使室内温度下降5-8℃,施工进程较凌乱,若为旧厂房做保温改造,需求撤消原有屋面,拉上钢丝网,在钢丝网上铺设玻璃棉,钢结构盖上原有屋面板,再做防水处理。在屋面板上喷涂高效的隔热反射涂料。此种产品隔热保温机能极佳,钢结构可以在金属、混凝土、灰墙、木结构表面、石棉瓦、塑料、玻璃钢、橡胶等各种表面涂覆。涂层0.25mm厚,其效果相等于10cm-15cm玻璃棉的成效,它可以反射99.5%红外线,92.5%可见光,最高隔音效果达68%,钢结构厂房均匀隔音效果50%以上。防火A级,完全不燃。无毒安全,长效耐久,运用寿命15年以上(具体介绍可以参照工程材料档)。若用此法,施工利便,对原有屋面无损坏,并且能阻遏屋面的老化。施工后和施工前的板材表面温差最大可达20℃,室内温差可达8-10℃,钢结构厂房能耗可锐减30-70%。
二、钢结构厂房透风降温
因为钢结构厂房内有些机器发作热量和水蒸气,这些热气和水蒸气假定不及时排出,就会在厂房内累积,然后使钢结构厂房温度升高影响钢结构厂房环境。处理这些问题的方法就是保证厂房的公平透风,设备适量适宜的透风系统。公平的排风系统设备会明显的改善钢结构厂房空气环境,较大的下降钢结构厂房温度。设备屋面无动力透风器是依托空气对流学原理进行透风的一种透风设备,当室表里空气环境有差异时,就会发作空气活动,然后清扫室内废气及热气。其利益是不需求额外的电力,较环保。但对环境的依托性较强,不能强制排风。产品首要有涡轮透风器,条形透风器(采光带透风),屋脊透风器等。钢结构厂房设备屋面强制排风机动力风机是由电力带动的一种透风设备。其排风效果好,能习气任何环境的透风。
三、钢结构厂房强制降温
强制降温是指在厂房屋面设备凉风机,凉风机是运用水冷却的原理冷却空气,由强排风机把凉风输送到室内的机器。它能让钢结构厂房室内温度保持在26-30℃的安静温度。其耗电量相等于空调的1/8。造价是空调的1/2,是厂房强制降温的好方法。